
完全達到電影后期制作標準,音效和畫質均為目前世界最高技術標準,無與倫比的視聽體驗。非現場無法想象。重新定義奢華的影音生活方式。
殿堂級的私家影院對聲學和光學環境要求苛刻,對空間需進行嚴格縝密的考量,要求房間面積至少60m2以上,層高為4.5m以上 。房間面積越大,可發揮的設計潛能越大。
實現功能
-
藍光電影
Blu ray
-
聽音樂
Music
-
電視節目
TV
-
網絡播放
Network play
-
游戲
Game
-
卡拉OK
Karaoke

藍光電影
Blu ray

聽音樂
Music

電視節目
TV

網絡播放
Network play

游戲
Game

卡拉OK
Karaoke
操作方式
-
搖控器控制(未配置)
-
設備自帶APP控制(未配置)
-
中央智能控制
中央智能控制
The central intelligence control
能過中央控制設備將所有影音設備和其它環境設備,如燈光、窗簾、空調、新風等全部集成控制。并實現一鍵式模式化操作。比如:進入房間只需選擇電影模式,所有設備全部按程序設定自動開啟并達到最佳工作狀態,直接坐享最完美的效果體驗。
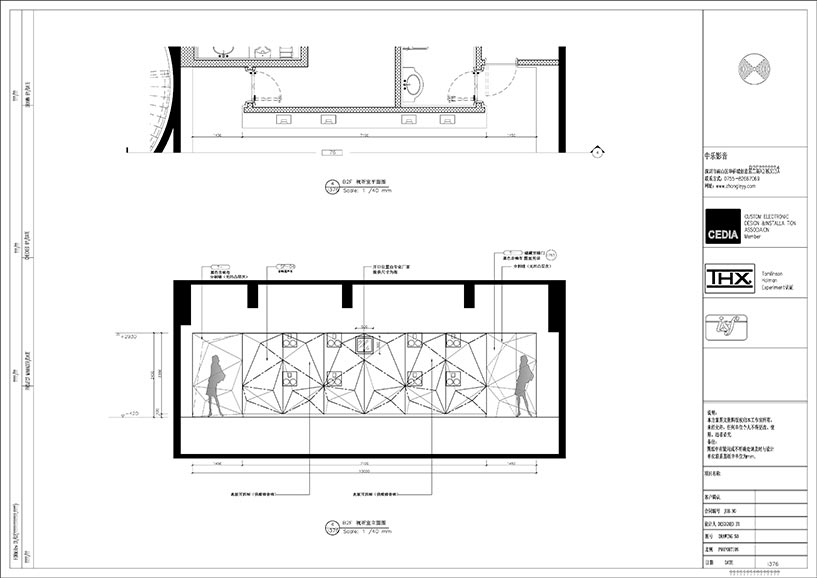
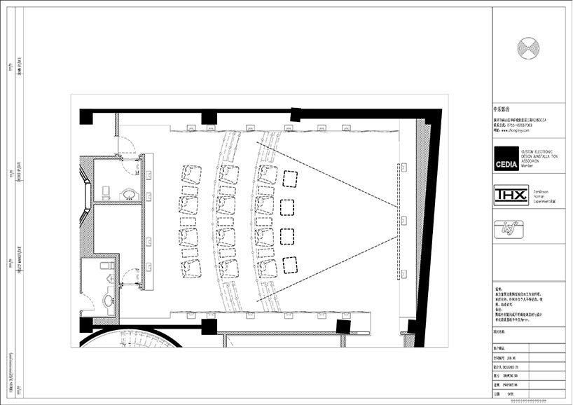
示例圖紙
-

- (平面布局)
-

- (平面布局)
-

- (平面布局)
-

- (平面布局)
-

- (設備系統框架圖)
設備選型建議


